Información y Venta: 626 842 176
Menú
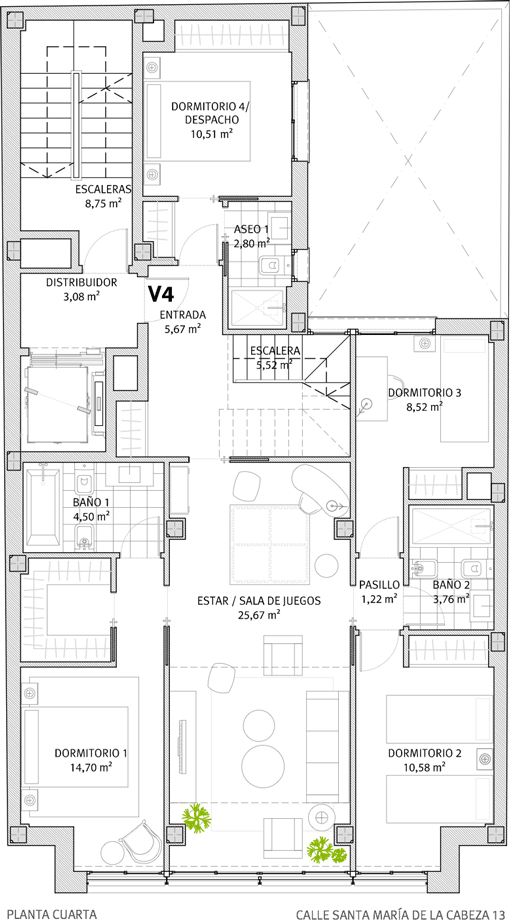
CALLE SANTA MARÍA DE LA CABEZA 13 FACHADA NORTE FACHADA ESTE LÍNEAS DE SECCIÓN
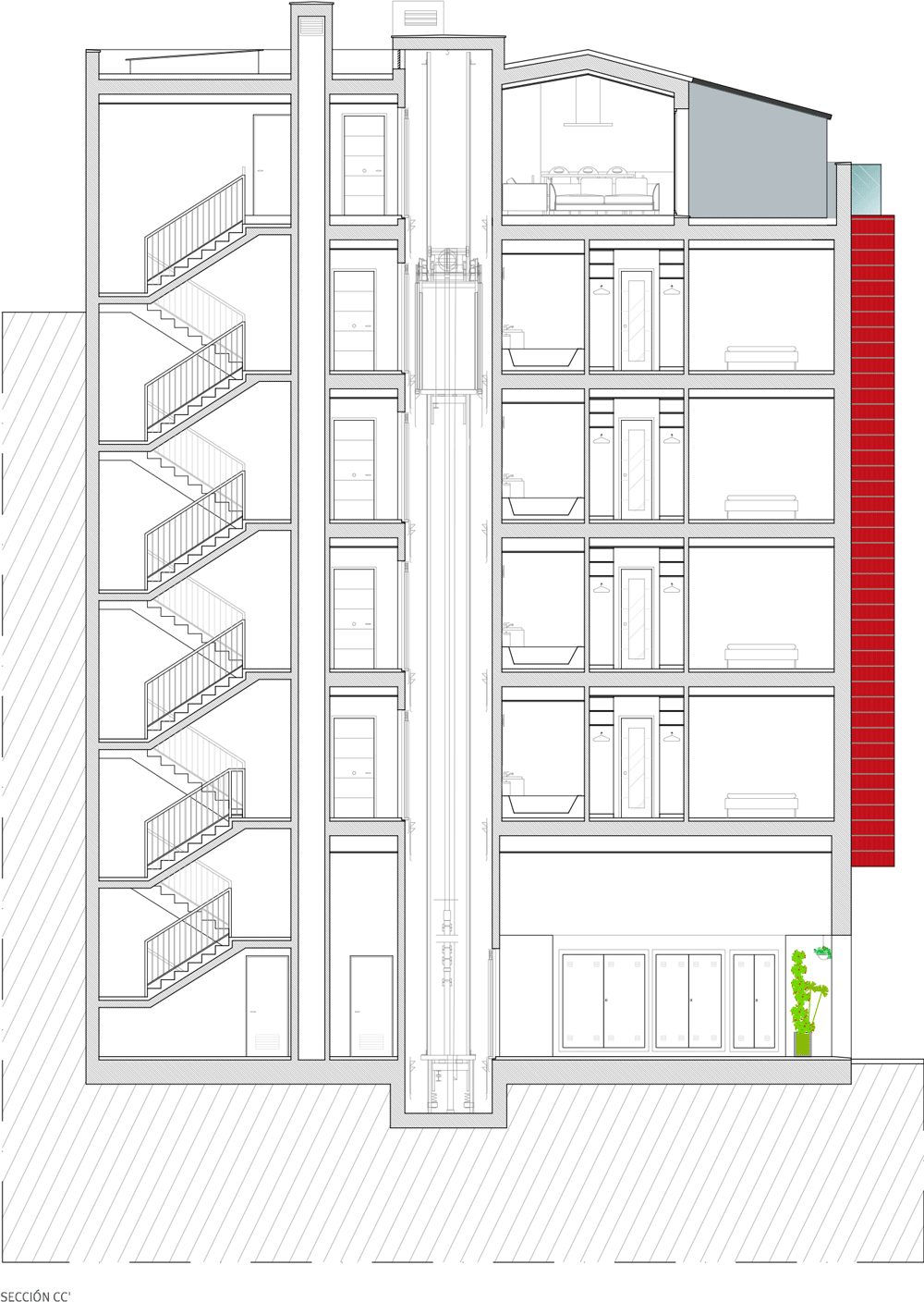
PLANTA SÓTANO PLANTA BAJA PLANTA PRIMERA PLANTA SEGUNDA PLANTA TERCERA PLANTA CUARTA PLANTA ENTREPLANTA-ÁTICO CUBIERTA SECCIÓN BB'
SECCIÓN AA' SECCIÓN DD' SECCIÓN CC'
Proyecto y gestión: Gumersindo Fernández Arquitectos S.L.P., Calle Ancha 8, 1º izq. 11001 Cádiz
Gumersindo Fernández Arquitectos S.L.P.